Odolný zahradní domek na nářadí Fritz je ideální pro celoroční uskladnění zahradního nářadí, nábytku, motorek, sekaček, křovinořezů, jízdních kol, příslušenství k bazénu a dalších věcí, které se vám například nevejdou do úložného prostoru v domě.
KONSTRUKCE ZAHRADNÍHO DOMKU:
Zahradní domek Fritz je vyroben z kvalitního severského smrkového dřeva (Finsko, Estonsko), vysušeného na relativní vlhkost 16 % (+ - 2%). Stěny mají tloušťku 18 mm, střecha je tloušťky 15 mm. Podlaha o tloušťce 16 mm a ploše 3,5 m2 je podporována 30 mm hranoly, které jsou naimpregnované technikou máčení v Bochemitu BQ. Konstrukce zahradního domku není ošetřena nátěrem (vyjma podlahových hranolů). Plocha střechy je 5,5 m2. Součástí zahradního domečku je také asfaltový pás R330, který slouží pro dočasné zakrytí střechy po dobu několika týdnů. Zahradní domek doporučujeme zakrýt např. asfaltovými šindeli.
Zasklení zahradního domku je řešené 4mm polykarbonátem.

Schéma: zahradní domek Fritz

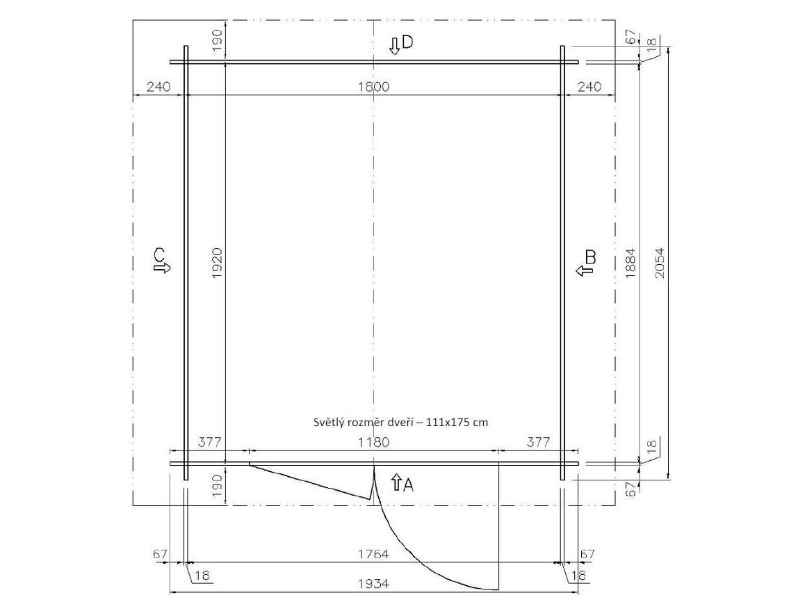
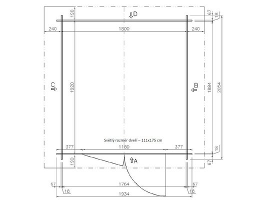
Schéma: Půdorys zahradního domku Fritz
Animace domků a jejich příslušenství
| Dřevěný zahradní domek Fritz | |
|---|---|
| barva | přírodní |
| materiál | smrkové dřevo |
| rozměr základů | 180 x 192 cm |
| zastavěná plocha | 3,5 m2 |
| výška v hřebeni | 221 cm |
| výška boční stěny | 185 cm |
| plocha střechy | 5,5 m2 |
| tloušťka stěn / podlahy / střechy | 18 mm / 16 mm / 15 mm |
| rozměry dveří | 111 x 175 cm |
| výplň oken | 4mm polykarbonát |
| hmotnost | 230 kg |
| rozměry palety (délka, šířka, hloubka) | 2100 x 1180 x 380 mm |
| Kód produktu | Popis / rozměr | MJ | |
| 100000058 | domek Fritz 180 x 192 cm |




